SCHICKE, RENOVIERTE EG-HOCHP.-3-RWG M. TAGESLICHTBAD U. AR IN BELIEBETER LAGE NÄHE D. ZWENKAUER SEES
Objektart
Adresse
Objektdaten
Informationen
Ausstattung
Details
Willkommen in Ihrem neuen Zuhause in Zwenkau! Diese charmante Hochparterre-Wohnung verbindet historischen Charme mit modernem Komfort und steht ab sofort zur Vermietung bereit.
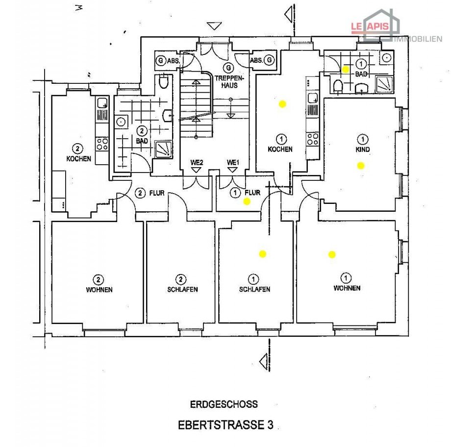
Auf ca. 75 m² bietet Ihnen die vollständig renovierte Immobilie ein ansprechendes Wohnkonzept mit drei Zimmern, darunter zwei gemütliche Schlafzimmer, eine geräumige Küche und ein modernes Badezimmer.
Die massive Bauweise sorgt für Langlebigkeit und Sicherheit, während die gehobene Ausstattung ein stilvolles Ambiente garantiert. Der Wohnbereich ist mit hochwertigem Vinylboden in Holzoptik und Fliesen ausgestattet.
Ein besonderes Highlight dieser Wohnung ist der Zugang zum Garten, der Ruhe und Erholung verspricht. Zudem bietet der sich im Treppenhaus befindliche Abstellraum sowie das zur Wohnung gehörende Kellerabteil zusätzlichen Stauraum.
Profitieren Sie von der optimalen Lage und der attraktiven Wohnqualität dieser Immobilie. Zögern Sie nicht, sich dieses Schmuckstück anzusehen, und gestalten Sie Ihr neues Zuhause in Zwenkau.
- frisch renovierte helle 3-RWG im EG-Hochp. li., WE1
- Tageslichtbad mit Dusche, WC, WM-Anschluss
- Vinyl-/ Fliesenboden
- Abstellraum im Treppenhaus
- Kellerabteil
- Gartennutzung
Die Wohnung befindet sich in Zwenkau, einer charmanten Kleinstadt im Süden der Metropolregion Leipzig. Die Lage überzeugt durch ein angenehmes, überwiegend wohngeprägtes Umfeld mit kurzen Wegen zu den Einrichtungen des täglichen Bedarfs. Einkaufsmöglichkeiten, Bäcker, Apotheken sowie ärztliche Versorgung sind im Ort gut erreichbar und sorgen für eine komfortable Nahversorgung.
Zwenkau ist insbesondere für seine hohe Freizeit- und Erholungsqualität bekannt: Der nahegelegene Zwenkauer See mit Uferpromenaden, Gastronomie und vielfältigen Wassersportmöglichkeiten bietet ganzjährig attraktive Ausflugsziele. Gleichzeitig profitieren Bewohner von einer guten Anbindung in Richtung Leipzig und der umliegenden Gemeinden - sowohl mit dem Auto als auch über den öffentlichen Nahverkehr.
Die Kombination aus ruhigem Wohnen, naturnaher Umgebung und der Nähe zur Großstadt macht diese Lage besonders interessant für Eigennutzer und Kapitalanleger gleichermaßen.
Es liegt ein Energieverbrauchsausweis vor.
Dieser ist gültig bis 7.6.2026.
Endenergieverbrauch beträgt 129.00 kwh/(m²*a).
Wesentlicher Energieträger der Heizung ist Erdgas schwer.
Das Baujahr des Objekts lt. Energieausweis ist 1997.
Die Energieeffizienzklasse ist D.
Alle Angaben in diesem Exposé wurden nach bestem Wissen und Gewissen des Eigentümers gemacht. Die Firma LE APIS Immobilien kann keine Gewährleistung für die Richtigkeit und Vollständigkeit der Angaben übernehmen. Fotos, Texte und Grafiken unterliegen dem Copyright der Firma LE-APIS Immobilien.
****************************
Sie haben auch (ein) Haus oder eine Eigentumswohnung in dieser Gegend zu verkaufen?
Besuchen Sie unsere Tippgeberseite auf www.le-apis-immobilien.de
Genau für Ihre Immobilie könnten wir den passenden Käufer haben!
Fragen Sie doch einfach mal nach unter: 034298-54907-0 oder senden Sie uns eine E-Mail an info@le-apis-immobilien.de
Für Verkäufer kostenfrei.
****************************
Ansprechpartner
Telefax: 004934298549075
Mobil: 004915254250755
info@le-apis-immobilien.de
Downloads
Energieausweis (Verbrauchsausweis)
129 kWh / (m²*a) Energieverbrauchskennwert
129 kWh / (m²*a) Energieverbrauchskennwert
129 kWh / (m²*a) Energieverbrauchskennwert
Weitere Informationen
| Wesentlicher Energieträger | Erdgas schwer |
| Energieausweis gültig bis | 2026-06-07 |
| Energieausweis Jahrgang | ab dem 1.5.2014 |
| Energieausweis Werteklasse | D |
| Energieausweis Baujahr | 1997 |
| Energieausweis Gebäudeart | Wohngebäude |
| Heizung | Zentralheizung |
| Befeuerung | Gas |
