LE APIS Immobilien
Tel.: 034298 549070
E-Mail: info@le-apis-immobilien.de
Internet: www.le-apis-exclusiv.de
 

+++TOLLE MODERNISIERTE 2-R- EG-WG IM BACHVIERTEL MIT TOLLER AUSSTATTUNG+++

Objektübersicht

Status   Vermietet
Objektart   Erdgeschosswohnung
Adresse   04109 Leipzig / Leipzig Zentrum-West, Ferdinand-Lassalle-Strasse 14
Objektnummer   901
Zimmerzahl   2
Wohnfläche (ca.)   41 m²
Heizkosten sind in Nebenkosten enthalten   ja
Aufzug   Personenaufzug
Bauweise   Massiv
Einheit-Nr.   EG-L
Unterkellert   ja
WG-geeignet   ja
Objekt ist vermietet   ja
Schlafzimmer   1
Badezimmer   1
Bodenbelag   Fliesen, Parkett
Heizung   Zentralheizung
Haustiere   ja
Ausstattung   GEHOBEN
Abstellraum   ja
Ausbaustufe   Schluesselfertigmitkeller
Kabel / Sat-TV   ja
Serviceleistungen   Reinigung
Zustand   teil / vollrenoviert
Erschließung   voll erschlossen
bezugsfrei ab   ab sofort

Objektbeschreibung

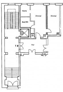
Dieses attraktive Objekt befindet sich in der Ferdinand-Lassalle-Straße 14 im Leipziger Bachviertel. Sie betreten die Wohnung durch den großzügige Diele.

Linkerseits betreten Sie das helle, lichtdurchflutete Wohnzimmer von dem Sie auch die anderen Räumlichkeiten erreichen - das Schlafzimmer, das Badezimmer mit Dusche und die Küche. Das Bad ist mit einer Dusche und einem Handtuchheizkörper ausgestattet.

Ausstattung

- 2-RWG
- Parkettboden in allen Wohnräumen
- Fliesen im Bad und in der Küche
- Handtuchheizkörper im Badezimmer

Das Gebäude steht unter Denkmalschutz, daher ist kein Energieausweis notwendig.

Lage

Das Bachviertel anfangs als "Viertel am Johannapark" bekannt ist ein gründerzeitlich geprägtes Wohnviertel in der äußeren Leipziger Westvorstadt um die zentrale Sebastian-Bach-Straße, nach der es benannt worden ist.

Als Leipziger Bachviertel bezeichnet man das Areal rund um die Sebastian Bach Straße in Leipzig, westlich des Leipziger Stadtzentrums. Das Bachviertel zählt noch zum Leipziger Zentrum und ist auf Grund der idealen fußläufigen Anbindung an die Innenstadt sehr beliebt. Zwischen Johannapark und Clara Zetkin Park, umgeben von viel "Grün", aber dennoch mit zentralen Lage, lässt es sich hier fantastisch Wohnen.

Überregional bekannt ist das Leipziger Bachviertel vor allem durch die Thomasschule, welche als älteste öffentliche Schule Deutschlands, sowie durch das Wirken Johann Sebastian Bachs als Thomaskontor, international an Bedeutung erlangte.

Es entstand Mitte bis Ende des 19. Jahrhunderts als Stadterweiterung zwischen Ferdinand-Lasalle-Straße und Käthe-Kollwitz-Straße und gilt mit seiner Blockrandbebauung und seinen Villen neben dem Waldstraßenviertel als besonders gut erhalten.

Fußläufig vom Stadtzentrum entfernt liegt das Bachviertel eingebettet zwischen Johannapark und Elstermühlgraben zentral, aber dennoch ruhig, mitten im Zentrum Leipzigs. Durch die vielfältigen Naherholungsmöglichkeiten zu Land und auch auf dem Wasser ist das Bachviertel bei den Leipzigern äußerst beliebt. Zahlreiche Radwege ins Zentrum, oder zu den im Südraum Leipzigs vorhandenen neu entstandenen Seen bieten Abwechslung.

Die Infrastruktur ist hervorragend. Einkaufsmöglichkeiten und der öffentliche Personennahverkehr sind fußläufig zu erreichen. In den letzten Jahren wurden vermehrt Tempo 30 Zonen eingerichtet, um die Geräuschemission auf das Nötigste zu begrenzen. Wie bei allen beliebten Stadtteilen im Großraum Leipzig ist die Parksituation in den Anwohnerstraßen teilweise etwas eingeschränkt.

Sonstiges

Alle Angaben in diesem Exposé wurden nach bestem Wissen und Gewissen des Eigentümers gemacht. Die Firma LE APIS Immobilien kann keine Gewährleistung für die Richtigkeit und Vollständigkeit der Angaben übernehmen. Fotos, Texte und Grafiken unterliegen dem Copyright der Firma LE APIS Immobilien.

****************************
Sie haben auch (ein) Haus oder eine Eigentumswohnung in dieser Gegend zu verkaufen?

Besuchen Sie unsere Tippgeberseite auf www.le-apis-immobilien.de

Genau für Ihre Immobilie könnten wir den passenden Käufer haben!
Fragen Sie doch einfach mal nach unter: 034298-54907-0 oder senden Sie uns eine E-Mail an info@le-apis-immobilien.de

****************************

Kontaktinformation

LE APIS Immobilien
Brauhausstr. 19
D-04425 Taucha

Tel.: 034298 549070
Fax: 034298 549075
E-Mail: info@le-apis-immobilien.de
Internet: www.le-apis-exclusiv.de

Ihr Ansprechpartner

Ansprechpartnerfoto Frau Peggy Günther

Frau Peggy Günther

Telefon: 004934298549070
Telefax: 004934298549075
Mobil: 004915254250755
info@le-apis-immobilien.de

Wohnzimmer +++TOLLE MODERNISIERTE 2-R- EG-WG  IM BACHVIERTEL MIT TOLLER AUSSTATTUNG+++
Wohnzimmer 
Diele / Flur +++TOLLE MODERNISIERTE 2-R- EG-WG  IM BACHVIERTEL MIT TOLLER AUSSTATTUNG+++
Diele / Flur 
Wohnzimmer +++TOLLE MODERNISIERTE 2-R- EG-WG  IM BACHVIERTEL MIT TOLLER AUSSTATTUNG+++
Wohnzimmer 
Wohnzimmer +++TOLLE MODERNISIERTE 2-R- EG-WG  IM BACHVIERTEL MIT TOLLER AUSSTATTUNG+++
Wohnzimmer 
Wohnzimmer +++TOLLE MODERNISIERTE 2-R- EG-WG  IM BACHVIERTEL MIT TOLLER AUSSTATTUNG+++
Wohnzimmer 
Wohnzimmer +++TOLLE MODERNISIERTE 2-R- EG-WG  IM BACHVIERTEL MIT TOLLER AUSSTATTUNG+++
Wohnzimmer 
Wohnzimmer +++TOLLE MODERNISIERTE 2-R- EG-WG  IM BACHVIERTEL MIT TOLLER AUSSTATTUNG+++
Wohnzimmer 
Schlafzimmer +++TOLLE MODERNISIERTE 2-R- EG-WG  IM BACHVIERTEL MIT TOLLER AUSSTATTUNG+++
Schlafzimmer 
Schlafzimmer +++TOLLE MODERNISIERTE 2-R- EG-WG  IM BACHVIERTEL MIT TOLLER AUSSTATTUNG+++
Schlafzimmer 
Schlafzimmer +++TOLLE MODERNISIERTE 2-R- EG-WG  IM BACHVIERTEL MIT TOLLER AUSSTATTUNG+++
Schlafzimmer 
Küche +++TOLLE MODERNISIERTE 2-R- EG-WG  IM BACHVIERTEL MIT TOLLER AUSSTATTUNG+++
Küche 
Küche +++TOLLE MODERNISIERTE 2-R- EG-WG  IM BACHVIERTEL MIT TOLLER AUSSTATTUNG+++
Küche 
Küche +++TOLLE MODERNISIERTE 2-R- EG-WG  IM BACHVIERTEL MIT TOLLER AUSSTATTUNG+++
Küche 
Masterbad +++TOLLE MODERNISIERTE 2-R- EG-WG  IM BACHVIERTEL MIT TOLLER AUSSTATTUNG+++
Masterbad 
Masterbad +++TOLLE MODERNISIERTE 2-R- EG-WG  IM BACHVIERTEL MIT TOLLER AUSSTATTUNG+++
Masterbad 
Grundriss-EG links +++TOLLE MODERNISIERTE 2-R- EG-WG  IM BACHVIERTEL MIT TOLLER AUSSTATTUNG+++
Grundriss-EG links 
Lageplan +++TOLLE MODERNISIERTE 2-R- EG-WG  IM BACHVIERTEL MIT TOLLER AUSSTATTUNG+++
Lageplan